|
|
ここ最近で49回見られています!
|
|
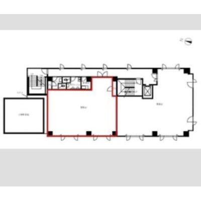
貸店舗(区分)
6枚 |
USビル19
301万6,200円[税込]
(+管理費等4万5,980円)
[坪単価 約4.4万円/坪]
226.61m² (68.54坪)|1階/8階建
|
仙台市青葉区中央3丁目1-20
…徒歩1分 駅近!
仙台市営地下鉄東西線
「仙台」駅
他
|
|
|
|
|
|
ここ最近で49回見られています!
|
|
貸店舗・貸事務所(区分)
5枚 |
一番街ビル一棟
165万円[税込]
(+管理費等-円)
[坪単価 約2.1万円/坪]
256.7m² (77.65坪)|1階/3階建
|
仙台市青葉区一番町3-10-25
…徒歩3分 駅近!
仙台市営地下鉄東西線
「青葉通一番町」駅
他
|
|
|
|
|
|
貸店舗・貸事務所(区分)
5枚 |
佐藤強ビル1階
110万円[税込]
(+管理費等-円)
[坪単価 約2.2万円/坪]
162.64m² (49.19坪)|路面/9階建(地下1階)
|
仙台市青葉区本町2丁目6-37
…徒歩2分 駅近!
仙台市営地下鉄南北線
「広瀬通」駅
他
|
|
|
|
|
|
貸店舗(区分)
7枚 |
Foresta大町
109万2,100円[税込]
(+管理費等-円)
[坪単価 約2.4万円/坪]
149.19m² (45.12坪)|1階/8階建
|
仙台市青葉区一番町3丁目6-10
…徒歩3分 駅近!
仙台市営地下鉄東西線
「青葉通一番町」駅
他
|
|
|
|
|
|
貸店舗(区分)
6枚 |
モリノスクエア:3F
100万9,800円[税込]
(+管理費等-円)
[坪単価 約1.5万円/坪]
216.53m² (65.5坪)|路面/5階建(地下1階)
|
仙台市青葉区一番町3丁目 10-17
…徒歩5分
仙台市営地下鉄東西線
「青葉通一番町」駅
他
|
|
|
|
|
|
ここ最近で31回見られています!
|
|
貸店舗(区分)
2枚 |
フォーシーズンビル
97万5,150円[税込]
(+管理費等-円)
[坪単価 約2.0万円/坪]
162.78m² (49.24坪)|3階/8階建
|
- 出店するのにおすすめの業種
- 飲食
 - 喫茶

仙台市青葉区中央2丁目2-30
…徒歩1分 駅近!
JR仙石線
「あおば通」駅
他
|
|
|
|
|
|
貸店舗・貸事務所(一棟)
写真充実12枚 |
TM-0005
88万円[税込]
(+管理費等-円)
[坪単価 約1.5万円/坪]
196m² (59.29坪)|2階建
|
|
|
|
|
|
|
|
ここ最近で78回見られています!
|
|
貸店舗(区分)
写真充実10枚 |
シリウス・一番町
83万3,250円[税込]
(+管理費等9万9,990円)
[坪単価 約2.8万円/坪]
100.17m² (30.3坪)|2階/22階建
|
- 出店するのにおすすめの業種
- 飲食
 - 喫茶

仙台市青葉区一番町2-4-19
…徒歩2分 駅近!
仙台市営地下鉄東西線
「青葉通一番町」駅
他
|
|
|
|
|
|
貸店舗(区分)
写真充実11枚 |
一番街ビル1階路面店
82万5,000円[税込]
(+管理費等-円)
[坪単価 約3.8万円/坪]
72.72m² (21.99坪)|路面/3階建
|
仙台市青葉区一番町3丁目 10-25
…徒歩3分 駅近!
仙台市営地下鉄東西線
「青葉通一番町」駅
他
|
|
|
|
|
|
貸事務所(区分)
6枚 |
G075
81万4,704円[税込]
(+管理費等-円)
[坪単価 約2.6万円/坪]
102.02m² (30.86坪)|24階/31階建
|
|
|
|
|
|
|
|
ここ最近で31回見られています!
|
|
貸店舗(区分)
1枚 |
ヒルトップ晩翠
50万3,008円[税込]
(+管理費等なし)
[坪単価 約1.8万円/坪]
94.48m² (28.58坪)|路面/10階建
|
- 出店するのにおすすめの業種
- 喫茶
 - 物販

仙台市青葉区国分町3丁目4-10
…徒歩7分
仙台市営地下鉄南北線
「勾当台公園」駅
|
|
|
|
|
|
貸店舗・貸事務所(一棟)
9枚 |
F180
45万円[税込]
(+管理費等-円)
[坪単価 約8,015円/坪]
185.65m² (56.15坪)|3階建
|
仙台市青葉区旭ケ丘1-3-1
…徒歩12分
仙台市営地下鉄南北線
「旭ヶ丘」駅
他
|
|
|
|
|
|
ここ最近で28回見られています!現在1人が検討中です。
|
|
貸店舗(区分)
6枚 |
上杉五番館
40万6,120円[税込]
(+管理費等6万918円)
[坪単価 約1.1万円/坪]
122.05m² (36.92坪)|1階/5階建
|
|
|
|
|
|
|
|
ここ最近で31回見られています!
|
|
貸店舗・貸事務所(区分)
写真充実13枚 |
オンラード二日町
39万6,000円[税込]
(+管理費等-円)
[坪単価 約1.5万円/坪]
86.4m² (26.13坪)|路面/2階建
|
仙台市青葉区二日町3-6
…徒歩8分
仙台市営地下鉄南北線
「北四番丁」駅
他
|
|
|
|
|
|
ここ最近で38回見られています!現在1人が検討中です。
|
|
貸店舗・貸事務所(一棟)
1枚 |
茂庭人来田西店舗
39万6,000円[税込]
(+管理費等-円)
[坪単価 約8,506円/坪]
153.93m² (46.56坪)|1階建
|
- 出店するのにおすすめの業種
- 飲食

|
|
|
|
|
|
貸店舗・貸事務所(区分)
写真充実13枚 |
Star Platinum五橋
38万5,000円[税込]
(+管理費等-円)
[坪単価 約1.4万円/坪]
87.81m² (26.56坪)|2階/3階建
|
|
|
|
|
|
|
|
ここ最近で53回見られています!現在1人が検討中です。
|
|
貸店舗・貸事務所(区分)
写真充実12枚 |
H095
37万1,900円[税込]
(+管理費等2万4,750円)
[坪単価 約7,424円/坪]
165.62m² (50.1坪)|1階/1階建
|
|
|
|
|
|
|
|
ここ最近で28回見られています!現在1人が検討中です。
|
|
貸店舗(区分)
4枚 |
(仮称)文化横丁ビル
25万8,500円[税込]
(+管理費等-円)
[坪単価 約2.2万円/坪]
38.95m² (11.78坪)|2階/3階建
|
- 出店するのにおすすめの業種
- 飲食
 - 喫茶

仙台市青葉区一番町2-3-41
…徒歩3分 駅近!
仙台市営地下鉄東西線
「青葉通一番町」駅
他
|
|
|
|
|
|
貸店舗(区分)
写真充実12枚 |
ネオハイツ中野栄 部屋番号:105
24万2,000円[税込]
(+管理費等-円)
[坪単価 約9,566円/坪]
83.66m² (25.3坪)|路面/10階建
|
|
|
|
|
|
|
|
貸店舗(区分)
2枚 |
K263
23万9,700円[税込]
(+管理費等-円)
[坪単価 約1.2万円/坪]
66.05m² (19.98坪)|1階/6階建
|
仙台市若林区河原町
…徒歩4分
仙台市営地下鉄南北線
「河原町」駅
他
|
|
|
|
|
|
貸店舗・貸事務所(区分)
写真充実16枚 |
エルドール鉄砲町東101
23万3,200円[税込]
(+管理費等-円)
[坪単価 約1.6万円/坪]
49.37m² (14.93坪)|路面/4階建
|
|
|
|
|
|
|
|
ここ最近で41回見られています!現在1人が検討中です。
|
|
貸店舗(区分)
4枚 |
(仮称)文化横丁ビル
23万1,000円[税込]
(+管理費等-円)
[坪単価 約2.2万円/坪]
34.62m² (10.47坪)|2階/3階建
|
- 出店するのにおすすめの業種
- 飲食
 - 喫茶

仙台市青葉区一番町2-3-41
…徒歩3分 駅近!
仙台市営地下鉄東西線
「青葉通一番町」駅
他
|
|
|
|
|
|
貸店舗(区分)
4枚 |
(仮称)文化横丁ビル
23万1,000円[税込]
(+管理費等-円)
[坪単価 約2.2万円/坪]
34.72m² (10.5坪)|2階/3階建
|
- 出店するのにおすすめの業種
- 飲食
 - 喫茶

仙台市青葉区一番町2-3-41
…徒歩3分 駅近!
仙台市営地下鉄東西線
「青葉通一番町」駅
他
|
|
|
|
|
|
ここ最近で46回見られています!
|
|
貸店舗(区分)
写真充実14枚 |
22万5,500円[税込]
(+管理費等3万1,570円)
[坪単価 約2.8万円/坪]
27.11m² (8.2坪)|1階/5階建(地下1階)
|
- 出店するのにおすすめの業種
- 喫茶
 - バー

仙台市青葉区国分町2-15-20
…徒歩5分
仙台市営地下鉄南北線
「勾当台公園」駅
|
|
|
|
|
|
ここ最近で55回見られています!
|
|
貸店舗(区分)
写真充実14枚 |
Star Platinum上杉
22万円[税込]
(+管理費等-円)
[坪単価 約1.5万円/坪]
49.32m² (14.91坪)|路面/3階建
|
仙台市青葉区上杉6-2-84
…徒歩13分
仙台市営地下鉄南北線
「北四番丁」駅
|
|
|
|
|
|
ここ最近で123回見られています!現在1人が検討中です。
|
|
貸店舗・貸事務所(区分)
写真充実10枚 |
ネオハイツ勾当台 部屋番号:106
22万円[税込]
(+管理費等2万1,300円)
[坪単価 約6,607円/坪]
110.1m² (33.3坪)|路面/11階建(地下1階)
|
仙台市青葉区二日町13-26
…徒歩1分 駅近!
仙台市営地下鉄南北線
「北四番丁」駅
他
|
|
|
|
|
|
貸店舗・貸事務所(区分)
写真充実10枚 |
D027
21万1,750円[税込]
(+管理費等-円)
[坪単価 約7,700円/坪]
90.91m² (27.5坪)|3階/8階建
|
- 出店するのにおすすめの業種
- 教育
 - 事務所

仙台市青葉区二日町2-1
…徒歩3分 駅近!
仙台市営地下鉄南北線
「勾当台公園」駅
|
|
|
|
|
|
ここ最近で118回見られています!
|
|
貸店舗・貸事務所(区分)
3枚 |
N-0013
21万円[税込]
(+管理費等-円)
[坪単価 約7,178円/坪]
96.74m² (29.26坪)|路面/3階建
|
|
|
|
|
|
|
|
ここ最近で45回見られています!現在1人が検討中です。
|
|
貸店舗(区分)
写真充実15枚 |
楽天モバイルパーク宮城近隣 路面店 軽飲食可!
19万8,000円[税込]
(+管理費等-円)
[坪単価 約9,087円/坪]
72.04m² (21.79坪)|路面/2階建
|
|
|
|
|
|
|
|
ここ最近で95回見られています!現在1人が検討中です。
|
|
貸店舗(区分)
4枚 |
(仮称)文化横丁ビル
19万8,000円[税込]
(+管理費等-円)
[坪単価 約2.2万円/坪]
29.47m² (8.91坪)|2階/3階建
|
- 出店するのにおすすめの業種
- 飲食
 - 喫茶

仙台市青葉区一番町2-3-41
…徒歩3分 駅近!
仙台市営地下鉄東西線
「青葉通一番町」駅
他
|
|
|
|
|
|
貸店舗・貸事務所(区分)
2枚 |
19万8,000円[税込]
(+管理費等-円)
[坪単価 約9,087円/坪]
72.04m² (21.79坪)|1階/2階建
|
|
|
|
|
|
|
|
ここ最近で147回見られています!現在1人が検討中です。
|
|
貸店舗(区分)
写真充実11枚 |
ライオンズマンション大和
18万9,000円[税込]
(+管理費等1万1,000円)
1階/16階建
|
- 出店するのにおすすめの業種
- 飲食
 - 喫茶

|
|
|
|
|
|
貸店舗・貸事務所(区分)
2枚 |
VIP仙台二日町
18万4,327円[税込]
(+管理費等-円)
[坪単価 約1.4万円/坪]
42.64m² (12.89坪)|1階/9階建(地下1階)
|
仙台市青葉区二日町6-26
…徒歩5分
仙台市営地下鉄南北線
「北四番丁」駅
他
|
|
|
|
|
|
ここ最近で43回見られています!
|
|
貸店舗・貸事務所(区分)
写真充実23枚 |
A-0044
17万8,800円[税込]
(+管理費等-円)
[坪単価 約1.2万円/坪]
49.27m² (14.9坪)|路面/4階建
|
仙台市青葉区立町21-19
…徒歩10分
仙台市営地下鉄南北線
「勾当台公園」駅
他
|
|
|
|
|
|
ここ最近で84回見られています!現在1人が検討中です。
|
|
貸店舗(区分)
写真充実15枚 |
⼤倉ビル 1階東
17万6,000円[税込]
(+管理費等-円)
[坪単価 約1.5万円/坪]
40m² (12.1坪)|路面/4階建
|
- 出店するのにおすすめの業種
- 飲食
 - 喫茶

|
|
|
|
|
|
貸店舗・貸事務所(区分)
写真充実10枚 |
D027
17万3,250円[税込]
(+管理費等-円)
[坪単価 約7,700円/坪]
74.39m² (22.5坪)|3階/8階建
|
- 出店するのにおすすめの業種
- 教育
 - 事務所

仙台市青葉区二日町2-1
…徒歩5分
仙台市営地下鉄南北線
「勾当台公園」駅
|
|
|
|
|
|
貸店舗・貸事務所(区分)
写真充実24枚 |
I-0021
16万6,760円[税込]
(+管理費等2万845円)
[坪単価 約8,800円/坪]
62.66m² (18.95坪)|2階/3階建
|
仙台市泉区八乙女中央1-6-15
…徒歩1分 駅近!
仙台市営地下鉄南北線
「八乙女」駅
他
|
|
|
|
|
|
ここ最近で54回見られています!
|
|
貸店舗・貸事務所(区分)
写真充実29枚 |
15万4,000円[税込]
(+管理費等-円)
[坪単価 約9,374円/坪]
54.34m² (16.43坪)|路面/1階建
|
仙台市若林区六丁の目中町
…徒歩8分
仙台市営地下鉄東西線
「六丁の目」駅
他
|
|
|
|
|
|
ここ最近で155回見られています!現在4人が検討中です。
|
|
貸店舗(区分)
9枚 |
仙台協立第5ビル 部屋番号:2-3
15万円[税込]
(+管理費等-円)
[坪単価 約1.9万円/坪]
26.15m² (7.91坪)|路面/4階建(地下1階)
|
仙台市青葉区一番町4丁目 4-8
…徒歩6分
仙台市営地下鉄南北線
「勾当台公園」駅
他
|
|
|
|
|
|
ここ最近で33回見られています!
|
NEW
貸店舗(一棟)
写真充実30枚 |
大崎市鳴子温泉レストラン居抜きテナント!
13万2,000円[税込]
(+管理費等8,800円)
[坪単価 約6,169円/坪]
70.77m² (21.4坪)|1階建
|
- 出店するのにおすすめの業種
- 飲食
 - 喫茶

大崎市鳴子温泉月山13-2
…徒歩17分
奥の細道湯けむりライン
「川渡温泉」駅
|
|
|
|
|
|
ここ最近で43回見られています!
|
|
貸店舗・貸事務所(区分)
写真充実20枚 |
S-0035
13万2,000円[税込]
(+管理費等-円)
[坪単価 約6,640円/坪]
65.72m² (19.88坪)|路面/9階建
|
|
|
|
|
|
|
|
ここ最近で40回見られています!現在1人が検討中です。
|
|
貸店舗・貸事務所(区分)
写真充実10枚 |
D027
12万4,355円[税込]
(+管理費等-円)
[坪単価 約7,701円/坪]
53.39m² (16.15坪)|5階/8階建
|
- 出店するのにおすすめの業種
- 教育
 - 事務所

仙台市青葉区二日町2-1
…徒歩3分 駅近!
仙台市営地下鉄南北線
「勾当台公園」駅
|
|
|
|
|
|
ここ最近で124回見られています!
|
|
貸店舗(一棟)
写真充実17枚 |
太白区佐保山店舗付住宅
12万3,200円[税込]
(+管理費等6,160円)
[坪単価 約3,381円/坪]
120.48m² (36.44坪)|2階建
|
|
|
|
|
|
|
|
ここ最近で52回見られています!現在1人が検討中です。
|
|
住宅付貸店舗
写真充実19枚 |
11万円[税込]
(+管理費等2,200円)
[坪単価 約4,393円/坪]
82.8m² (25.04坪)|路面/2階建
|
仙台市若林区沖野
…徒歩43分
仙台市営地下鉄南北線
「長町一丁目」駅
他
|
|
|
|
|
|
ここ最近で69回見られています!
|
|
貸店舗(区分)
写真充実12枚 |
櫻小路飲食街 C棟2号室
9万9,000円[税込]
(+管理費等-円)
[坪単価 約9,706円/坪]
33.75m² (10.2坪)|1階/1階建
|
|
|
|
|
|
|
|
ここ最近で62回見られています!
|
|
貸店舗(区分)
写真充実12枚 |
丸喜ビル(マルヨシビル) 部屋番号:203
9万9,000円[税込]
(+管理費等-円)
[坪単価 約1.2万円/坪]
27m² (8.16坪)|路面/2階建
|
- 出店するのにおすすめの業種
- 飲食
 - 喫茶

|
|
|
|
|
|
ここ最近で189回見られています!現在2人が検討中です。
|
|
貸店舗(区分)
写真充実23枚 |
若林区遠見塚:貸テナント
8万8,000円[税込]
(+管理費等-円)
[坪単価 約8,739円/坪]
33.3m² (10.07坪)|路面/2階建
|
- 出店するのにおすすめの業種
- 喫茶
 - 物販

仙台市若林区遠見塚3-4-1
…徒歩15分
仙台市営地下鉄東西線
「卸町」駅
他
|
|
|
|
|
|
貸店舗(区分)
写真充実11枚 |
石巻市立町2丁目貸テナント(三井ビル)
8万8,000円[税込]
(+管理費等1万2,100円)
[坪単価 約6,662円/坪]
43.69m² (13.21坪)|路面/3階建
|
|
|
|
|
|
|
|
ここ最近で98回見られています!現在2人が検討中です。
|
|
貸店舗(一棟)
写真充実25枚 |
柴田町槻木新町元飲食店テナント
7万7,000円[税込]
(+管理費等なし)
[坪単価 約4,393円/坪]
57.96m² (17.53坪)|2階建
|
- 出店するのにおすすめの業種
- 飲食
 - 喫茶

|
|
|
|